15
nových článků - klikněte pro zobrazení

Jihlavské listy

Popis:

Noviny Kraje Vysočina

URL:

http://www.jihlavske-listy.cz/

Katalog:

Z domova → Regiony → Vysočina

Publikuje:

5,4 položek/den

Bývala sýpkou i kinem. Díky propojení komunity je Orlovna opět v plné kráse

8:49
„Tento dům postaven byl obětavostí příznivců a členů katol. spolku v Telči a okolí za vedení předsedy prof. P. J. Rampuly,“ hlásá nápis na pamětní desce u vstupu do budovy Orlovny v Jihlavské ulici v Telči. V letech 1928 – 1929 ji navrhl a postavil arch. Jar. Tesař. Dům byl posvěcen a svému účelu odevzdán 6. července roku 1930. Celou českou společnost, a tedy i zdejší spolkovou činnost, pak čekal…

Basketbalový svátek. Koho sledovat?

7:55
Americká superhvězda Brionna Jonesová kvůli operaci kolene na palubovku nevyběhne, přesto se diváci mohou těšit na to nejlepší, co česká liga ženského basketbalu aktuálně nabízí. Jihlavská Horácká aréna se tuto sobotu (14. hod) stane dějištěm prestižního utkání pod vysokými koši mezi ZVVZ USK Praha a Žabinami Brno. Český hegemon a úřadující šampión Euroligy versus jeho hlavní rival, vyzyvatel a ú…

Většina cizinců na Vysočině je z Ukrajiny, ze stíhaných cizinců tvoří polovinu

14:17
Na Vysočině žije přes 21.000 Ukrajinců, tvoří tak téměř 68 procent všech cizinců v kraji. Mezi trestně stíhanými cizinci v uplynulých dvou letech byla Ukrajinců zhruba polovina. Nejčastěji jsou stíhaní kvůli ohrožení pod vlivem návykových látek a opilství nebo pro padělání a pozměnění úřední listiny. Loni policie evidovala na Vysočině 212 trestně stíhaných Ukrajinců, což představuje necelých osm …

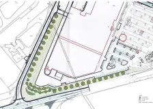
Obchodní centrum i nový zimák pro Třešť

14:17
Na Vysočině by mohlo vzniknout nové obchodní centrum a také zimní stadion. Investici za stovky milionů korun chystají dva různí developeři v lokalitě na pozemcích radnice při vjezdu do Třeště. Kromě marketu by součástí projektu měly být i další komerční prostory. Součástí území by měl být také nový zimní stadion. Ten chce ve městě ale vybudovat jiný investor, který do jednání s městem vstoupil lo…

Nová ředitelka přinese do Brány zkušenosti z Prahy

13:32
Rada města na svém zasedání minulý týden schválila novou ředitelku příspěvkové organizace Brána Jihlavy. Od 1. května se jí stane Patricia Glinská, která v současnosti působí jako poradkyně pro kulturu a cestovní ruch na pražském magistrátu. Město vyhlásilo výběrové řízení na pozici ředitele organizace poté, co současná ředitelka Soňa Krátká na svoji funkci k 31. lednu z osobních důvodů rezignova…

Statistici loni zaznamenali pokles v chovech skotu a prasat

11:48
Chovatelé na Vysočině redukují stavy skotu i prasat. Vyplývá to z meziroční statistiky, kterou zveřejnili statistici Českého statistického úřadu. Ke konci loňského roku ve srovnání se stejným obdobím roku 2024 se počet chovaného skotu v regionu zastavil na čísle (219.742 kusů, což představuje meziročně pokles o -1,1 %). Pokles statistici zaznamenali i u prasat, kde se jejich počet zastavil na (30…

Tušení Petrkova se ohlíží za pěti lety dění a snah o revitalizaci zámečku Reynkových

10:51
Pod titulem Tušení Petrkova - Prvních pět let – Reflexe Petrkova – Imaginace – Setkání obrazem vydal Památník národního písemnictví - Česko-francouzské kulturní centrum Petrkov graficky originálně pojatou neprodejnou publikaci u příležitosti 5. výročí rozhodnutí o odkupu areálu Petrkova státem a vzniku petrkovského centra. Autoři textů Lucie Tučková, Alena Anderlová, Michael Mauer, Zdeněk Freisle…

Velké nadšení našich školáků z výstavy Body Worlds v Praze

25.února
Ve středu 18. 2. jsme navštívili světovou výstavu Body Worlds na pražském Chodově. Žáci devátých a osmých ročníků ZŠ Havlíčkova se do Prahy na výstavu velmi těšili. Sraz byl již po šesté ranní na vlakovém nádraží, kde jsme se všichni sešli a mohli vyrazit. Cesta vlakem ve stoje do Havlíčkova Brodu nám ubíhala, a i přestup na rychlík do Prahy se nám povedl. Po nedorozumění jsme dokonce nalezli svá…

V Dalešické přehradě našli mrtvého policejního potápěče

24.února
„Bohužel se potvrdily původní domněnky a tělo našeho kolegy jsme nalezli v hloubce cca 20 m bez známek života. Pozůstalým vyjadřujeme upřímnou soustrast a jsme připraveni udělat vše, co bude v našich silách, abychom jednak zjistili příčiny této tragédie, ale také pomohli rodině," uvedla policie na síti X před dnešní 14 hodinou. Na místě byly jednotky z Havlíčkova Brodu, Třebíče, Hrotovic a Náměšt…

V aktuální chřipkové sezoně zaznamenali hygienici na Vysočině dvě úmrtí

24.února
Od začátku aktuální chřipkové sezony evidují hygienici na Vysočině v souvislosti s chřipkou dvě úmrtí, sdělila mluvčí krajské hygienické stanice Jana Böhmová. V minulém týdnu se v kraji počet lidí s akutními respiračními infekcemi mírně zvýšil. Na 100.000 obyvatel připadá 1311 nemocných, o týden dříve jich bylo 1285. Nejvíc nemocných je při tomto přepočtu na Žďársku. "Za aktuální sezonu akutních …

Koncert pod taktovkou dirigenta Lhotáka

24.února
Konec střelecky suššího února… V sobotním duelu Maxa ligy jihlavští hokejisté brankově explodovali a „vypráskali“ Porubu 9:1. Podobnou kanonádu Dukla doma naposledy předvedla v listopadu 2021 proti Vrchlabí (9:2). „Konečně jsme zabrali. Delší dobu na kluky apelujeme, abychom měli v utkáních herní úseky, které budeme chtít vidět v play off. Dnes se tam objevily, zápas se nám vydařil, ale je to poř…

To není strašení, to je realita, řekla u dronu mladá Ukrajinka

24.února
Po celý víkend byla v horním rohu Masarykova náměstí k vidění maketa ruského útočného dronu Shahed. Organizátoři akce tím chtěli upozornit na pokračující válku na Ukrajině a zároveň připomenout čtyřleté výročí ruské invaze. „Vím, že někteří říkají, že je to strašení, hra na emoce nebo manipulace. Ale chci se vůči tomu jasně ohradit, to není strašení, to je realita. Tento dron je připomínkou toho,…

Cizinec boural, na kauci ale neměl, tak přišel o značky

24.února
Policisté řešili na obchvatu Jihlavy v pátek 13. února nad ránem u kruhového objezdu nedaleko Rančířova dopravní nehodu cizince (30), který byl pod vlivem alkoholu, bez řidičského průkazu a navíc porušil soudem uložený zákaz pobytu. Když nezaplatil uloženou kauci 20 tisíc korun, zadrželi mu strážci zákona registrační značky vozidla. Muž je podezřelý z několika dopravních přestupků a trestného čin…
© 2000-2026 ANNECA s.r.o., Klíšská 977/77, 400 01 Ústí nad Labem, Tel: +420 478571021, Email: info@pravednes.cz, Twitter: @pravednes